Accurate. Buildable. Field-ready every time.

Accurate, buildable spool sheets for contractors and mechanical shops using Revit and AutoC.
Fully tagged, dimensioned, and ready for fabrication or installation.

LOD-400 level detailing for piping systems in Revit or Navisworks, equipment connections,
assemblies, and supports. Clean, clear, field-ready output every time.

Plan-view install sheets, BOMs, hanger layouts, RFI drawings,
model QA/QC corrections, and Navis model diagnostics.
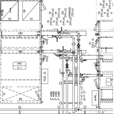
Mechanical Room Isometric – Chilled & Heating Water Piping Assembly

Accurate, buildable spool sheets in Revit and AutoCAD.
Fully tagged, dimensioned, and ready for fabrication or field installation.

LOD-400 piping and equipment detailing, supports, assemblies, and hanger layouts.
Clean, clear, and fabrication-ready every time.

Plan-view install sheets, BOMs, RFI drawings, coordination updates, and model-based QA/QC corrections.
Every sheet is created with the installer in mind — fully tagged, dimensioned, and ready for fabrication or field installation.
Decades of piping, fabrication, and MEP detailing experience mean we understand how the field actually builds.
Direct access, quick responses, and transparent coordination. No layers of management — just answers.
Clean modeling, accurate routing, and consistent QA/QC reduce rework and avoid jobsite surprises.
As a small, specialized team, you get personal attention, flexible service, and fast turnaround without big-firm overhead.
From spooling to fabrication detailing to coordination updates, we support your project from model to install.
Get reliable, shop-ready deliverables without the big-firm delays.
Built from decades of field and fabrication experience, BIM Czar focuses on producing drawings that installers trust.
BIM Czar is a specialized MEP detailing service built on more than 20 years of piping, fabrication, and construction experience. After decades in the field and in VDC departments, we understand what installers need, what fabricators expect, and what project managers rely on to keep work moving. Our focus is simple: produce accurate, buildable, and field-ready deliverables—every time.
As a small, dedicated shop, BIM Czar provides the kind of personal attention and flexibility larger firms can’t match. You work directly with the detailer, not a sales rep or a rotating team. Every sheet is created with the installer in mind—clean routing, precise dimensions, consistent tagging, and clear communication from start to finish.
BIM Czar is jointly operated by Michael Zarzycki—MEP detailer, modeler, and spool specialist—and his wife, who oversees business operations. This structure ensures clients receive professional service with small-team responsiveness and a single point of accountability throughout the project.
Whether you need complete spool packages, LOD-400 fabrication detailing, coordination updates, RFI drawings, installation plans, or model QA/QC support, BIM Czar is here to help your project move smoothly from model to field.
Send your contract drawings, Revit/DWG models, or project scope and we’ll get your spools and deliverables moving.
PDFs, RVTs, DWGs, NWCs, and markups accepted.
We use cookies to analyze website traffic and optimize your website experience. By accepting our use of cookies, your data will be aggregated with all other user data.